Продажа дома в сельской местности
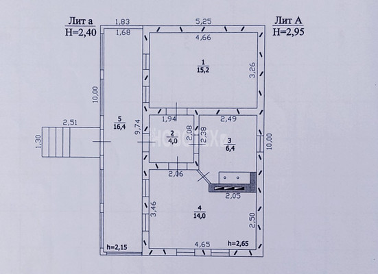
Арт. 42869512 #ЛОТ42869512НТ Продаётся дом у речки! Общая площадь дома 56 м2. Участком 23,75 соток. Участок с межеванием. Дом находится в селе Молдаванское, в Крымском районе, Краснодарского края. Село располагается на возвышенности, примерно 120-140 метров над уровнем моря. Не подтапливается в период паводка. В селе хорошо развитая инфраструктура. Есть школа, два детских садика, почта, фельдшерский пункт, аптека, парикмахерская, магазины "Магнит", "Пятёрочка". Имеется свой фитнес центр и клуб. В доме 2 комнаты по 15.2+14 м2. Высота потолков 2.65 м. Рядом с домом есть летняя кухня и много дополнительных хоз. построек. К дому подключено электричество и водопровод. Газ -баллонный. Фасад участка в 43м. Есть место для строительства ещё одного дома. Так же на участке растут различные фруктовые деревья. Участок ровный, угловой. Рядом родник. Преимущество дома в селе Молдаванское заключается в его уникальном месторасположении. Рядом находится виноградная долина Лефкадия. Отсутствие промышленных предприятий и переполненных автодорог, чистый воздух, замечательная природа и прекрасные пейзажи. Близость лесов, делает это место интересным для любителей охоты и похода за грибами. До города Краснодара 110 км., до Новороссийска 55 км., до Анапы 60км. До города Крымска всего 6 км. С городом хорошо налажено движение общественного транспорта. Жить в селе Молдаванское комфортно, безопасно и теперь ещё и престижно. Проводим ипотечные сделки. Помогаем оформить ипотечный кредит. Работаем с Херсонским сертификатом на покупку жилья. Организуем онлайн показ объекта. Организую экскурсию по селу Молдаванское. Позвоните сегодня и уже завтра этот дом может стать Вашим.При звонке по объекту не забудьте назвать ID данного объекта! Не забудьте добавить это объявление в Избранное, чтобы не потерялось.
Нас так же ищут по запросам:
Дом, купить дом, частный дом, дом в Крымском районе, дом с большим участком, коттедж, купить коттедж, дом в кредит, дом в ипотеку, дом за городом, дом на поб



















































