Под офис/салон в "тихом" центре
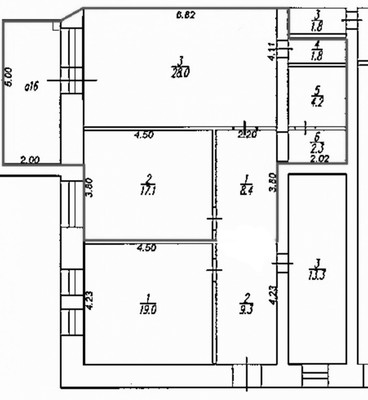
Арт. 126765032 В историческом центре города на ул.Свободы 4 на первом этаже 7-ми этажного жилого дома предлагается в аренду нежилое помещение площадью 113 кв.м. с отдельным входом со стороны ул.Затинной. Входная группа находится с торца дома , есть место под вывеску, доступ 24/7 .
Высокая транспортная и пешеходная доступность локации, парковка.
Помещение идеально подходит для офиса, образовательного центра, организаций сферы красоты и медицины.
Технические характеристики: кабинетная планировка с окнами, высота потолков-3 м., выполнен современный косметичексий ремонт, оборудован с/у, индивидуальное отопление (свой газовый котел), горячая и холодная вода, эл.мощность -20 Квт. (Допускается перепланировка за счет некапитальных перегородок).
Стоимость ареенды : 90.000 руб./мес.+коммунальные платежи. Предоставляются арендные каникулы.
Ищите офис с отдельным входом в "тихом" центре для своих сотрудников? Рассматриваете переезд и нужно помещение с ремонтом? Этот вариант для Вас! Звоните!



















