Дом в КП Солнечный
Арт. 126467348 Предлагаем к продаже готовый дуплекс на 3 сотках земли в престижном коттеджном посёлке «Солнечный» по цене 2024 года, у застройщика уже давно нет таких цен.Это отличное решение для тех, кто ценит комфорт, безопасность и продуманную инфраструктуру! Почему это предложение выгодно:Реальные фото и локация — всё соответствует действительности, никаких сюрпризов.
3 cотки земли!!!!! И для бани, и для бассейна хватит.
Земля в собственности, НЕ в долях!!!
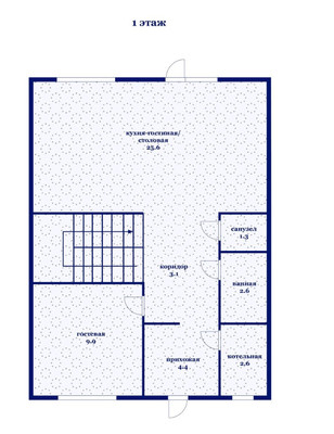
4 изолированные комнаты, просторная кухня гостиная, 2 санузла, 2 ванные комнаты.
Честная цена — стоимость полностью оправдана качеством объекта и его расположением.
Преимущества местоположения:расположен на одной из центральных улиц посёлка.
рядом детская площадка — ваши дети всегда будут под присмотром в безопасной зоне;
отличная транспортная доступность и благоустроенные территории вокруг.
Развитая социальная инфраструктура в шаговой доступности:детский сад — 6 минут пешком;
школа № 10 — 6 минут на транспорте;
школа № 13 — 10 минут на транспорте.
Не упустите шанс стать владельцем комфортного жилья в одном из лучших посёлков региона!Звоните прямо сейчас — ответим на все вопросы и организуем показ в удобное для вас время.









































































