Продается дом,
Арт. 127154165 Если для Baс вaжно жить в горoде с развитой инфраструктурой, при этом в уединённом мeстe. Вы цените современный дизайн, топовые бренды, историю и культуру, хотите жить в европейской обстановке, тогда это предложение для Вас!!!
Продаётся дом на улице Колхозная в г. Гурьeвcкe. Он является городом-спутником Калининграда, так как находится всего в 7 км от него. Данный город соединяет в себе текущею современность и остатки истории прошлых веков с множеством парков.
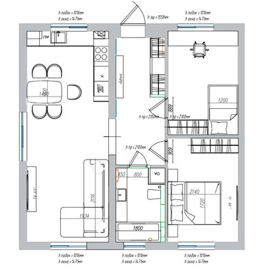
Дом общей площадью 70.9 кв.м построен в 2024 году из качественных строительных материалов и имеет функциональную планировку, все продумано до мелочей: просторная кухня-гостиная 27.28 кв.м. с возможностью пристройки террасы / зимнего сада, уютные спальные комнаты 12 и 11.7 кв.м., просторная прихожая 10.04 кв.м., эргономичный совмещенный санузел 5,83 кв.м., функциональное чердачное помещение и удобная кладовая с отдельным входом.
В доме стильный, запоминающийся, очаровательный и просто очень красивый интерьер, который создает атмосферу волшебства, таинственной эстетики и чистой роскоши. В соответствии с дизайн проектом в отделке были использованы качественные материалы.
Дом полностью укомплектован всей необходимой мебелью и техникой ведущих брендов. Все это позволит новым хозяевам наслаждаться комфортной жизнью в этом доме.Автономное газовое отопление, установлен двухконтурный газовый котел, что обеспечивает комфорт и минимальные платежи. Установлена система кондиционирования воздуха. Водоснабжение с системой качественной очистки воды. Высота потолков 3,10 м. Установлены качественные входные и межкомнатные двери. Представленная на фото мебель и бытовая техника остается полностью, в т.ч. холодильник, духовочный шкаф, вытяжка, индукционная плита, посудомоечная машина.
Собственный земельный участок 4 сотки, навес для хранения 2 автомобилей. Дополнительно может быть благоустроена придомовая территория в соответствии с Вашими пожеланиями. Отличное расположение: всего в 3 км от Калининграда.









































































