1 линия 1 этаж на Шаляпина 24/7
Арт. 127188817 Вашему вниманию предлагается помещение в доме Бизнес Класса в Вахитовском районе г. КазаниНовый привлекательный дом, с классной концепцией и прогулочной зоной! Уже сейчас в 1 очереди наблюдается уникальность локаций, кластер арендаторов притягивающий поток потенциальных клиентов!Преимущества помещения: 1 линия 1 этаж
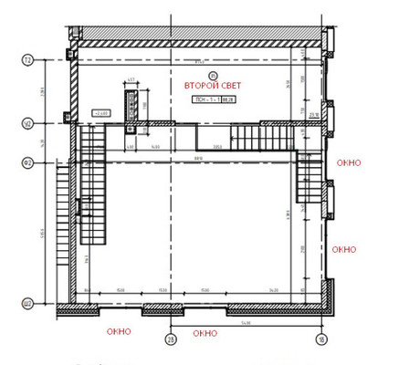
6 метров потолки
Окна в пол, большое количество (угловое помещение)
2-е входные группы ( основная группа и запасная с торца)
двух уровневая планировка, что даёт некую уникальность помещению
Напротив прогулочная зона, что в последующем позволит организовывать летнюю веранду и прочие шалости
Место под вывеску ( ваше помещение не останется не замеченным)
Арендные каникулы, возможность выкупа помещения в том числе!
Рядом: Surf Coffe, Аутпак, Pаce, NaomiNabi, 365 manicure, No Filter, L studio, Фильтр, Плюс, Base PremierЕсть ВИДЕООБЗОР, звоните пишите! Дом скоро вводится в эксплуатацию. Сдача 4 кв. 2025 год. Ключи в 2026 году.Ваш гид по коммерческой недвижимости - Галимзянов Раиль

























