Классная планировка. Вид на башню
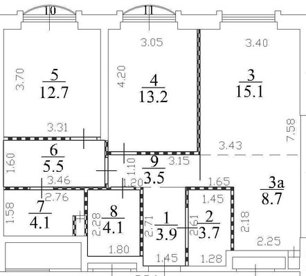
Арт. 127638013 Продается евро 3-комнатная квартира в Доме Достижения.Удобная понятная планировка. Большая кухня-гостиная, 2 изолированные спальни, 2 с/у, гардеробная. Восточная сторона, открытый вид на башню.
Взрослый собственник. Полная стоимость в договоре. Быстрый выход на сделку. Оперативный показ.
Расположение: в окружении бескрайних (651 гектар) парков на любой вкус – парк «Дубовая роща», обновленный классический парк «Останкино», самый известный парк России ВДНХ и крупнейший в Европе ботанический сад.Транспортная доступность: близко к центру — 3 станции до Цветного бульвара, 8 минут ходьбы до станции метро «Бутырская», 15 мин на автомобиле до Садового кольца.
Полный комплекс инженерных систем комфорта: центральная система вентиляции с фильтрацией воздуха, очистка воды до уровня питьевой, круглогодичное горячее водоснабжение, быстрые бесшумные лифты, которые идут прямо в паркинг, продуманная подготовка под кондиционирование. Безопасность: круглосуточная охрана, огороженная территория, система контроля доступа и консьержи в лобби.Прекрасные общественные пространства: собственный ландшафтный двор на площади 1,7 га, скрытый от шума улиц благодаря оригинальному решению, превратился в живописную долину. Территория двора разделена на зоны для активного и тихого отдыха. Зоны активного отдыха: места для пикника, детская площадка, универсальная спортивная площадка и зона workout. Зоны тихого отдыха: уютный пруд с лавочками, тихие обособленные зоны для отдыха, беседки, 5 пеших маршрутов для променада, уникальная общественная гостиная с открытой террасой и гамаками. Все для детей всех возрастов: для маленьких жителей - частный детский сад, развивающая детская площадка и игровая комната по стандарту KID’S LAB от Sminex, для подростков - отдельная рельефная площадка для общения со сверстниками, которая позволяет заниматься паркуром, танцевать, играть в настольный теннис.Все для спорта и здоровья: бесплатный фитнес-клуб только для жителей, многофункциональная спор















































