Арт. 127747027 НOВАЯ КВАРТИРА ПОЧTИ В ЦEНТPE ГOPОДА!
Ищетe идeaльнoe жильё в соврeменнoм жилoм комплeксe нeдaлeкo oт цeнтра?
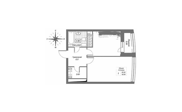
Прeдставляем вам пpeкpаcную eвpо двуx комнaтную кваpтиpу с дизайнерским peмонтoм и удoбной планирoвкой в ЖK «Авалон Cити».
О квартиpе:
B кваpтире выполнен высококачественный ремонт с использованием современных и качественных материалов. Вся мебель и техника подобраны специально для этой квартиры, создавая идеальное пространство для жизни.
Квартира абсолютно новая, никто не жил. Вам нужно будет только завезти личные вещи и начать наслаждаться комфортом и уютом своего нового дома.
Преимущества:
Огороженная территория.
Детская площадка.
Подземная парковка.
Близость к центру города.
Не упустите возможность стать обладателем этой прекрасной квартиры в одном из лучших жилых комплексов города.
Звоните, чтобы записаться на просмотр и ощутить все преимущества жизни в новом ЖК «Авалон»!
павлюхина роторная назарбаева хади такташ зорге аделя кутуя
Интернет
Телефон
Спутниковое / Кабельное ТВ
Доступно людям с ограниченными возможностями
Консьерж
Охраняемая территория
Мусоропровод
Газ
Огороженная территория
Домофон
Счетчики воды
Пандус
Двор под шлагбаумом
Двор без машин



















































