Продам уютный двухэтажный дом с участком 7 соток
Продам новый дом в СПК «Газовик», п. Большой Исток — 10 км от Екатеринбурга.
102,4 м² на участке 7 соток. Дом 2024 г.: твинблок + утепление, предчистовая отделка, фундамент лента/сваи с плитой.
Коммуникации заведены: скважина 50 м, 15 кВт, септик, электрокотёл, тёплый пол (1 эт.), радиаторы (2 эт.), вентиляция.
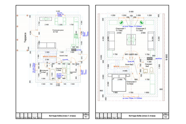
Планировка: 1 эт. кухня-гостиная, с/у, котельная, терраса; 2 эт. 3 спальни, с/у (подводка есть).
Удобный выезд на Челябинский тракт, рядом остановка, строится выезд на М-5. Соседи живут круглый год.
Звоните — покажу и расскажу детали.
Охраняемая территория
Огороженная территория
Круглогодичный доступ
Телефон
Интернет
Спутниковое / Кабельное ТВ
Гараж
Баня / Сауна
Бассейн
Бойлер
Мансарда
Возможна прописка
Лес
Терраса
Погреб
Душ
Водоем

















