Дом для дружной семьи!
Арт. 128399755 Продаётся двухэтажный дом 387.6 м² на участке 10 соток. КП «Ясенево» закрытого типа в п. Берёзовый (Прикубанский округ, г. Краснодар)
Представляем просторный современный коттедж в престижном закрытом посёлке — оптимальное решение для большой семьи, ценящей комфорт, безопасность и экологию.
Основные характеристики:* адрес: г. Краснодар, Прикубанский округ, посёлок Берёзовый, КП «Ясенево»;* площадь дома: 257.6 м² +130 м² мансарда;* площадь участка: 10 соток (1,000 м²);* этажность: 2 этажа;* статус земли: СНТ;* материал стен: кирпич;* состояние: предчитовая отделка;* год постройки: 2021
Планировка:
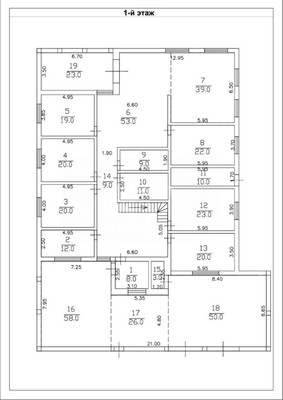
Первый этаж (257.6 м²):* 6 изолированных комнат (19+20+20+20+23+22 м² каждая);* просторная кухня‑гостиная: 92 м²;* прачечная: 12 м²;* котельная с отдельным входом с улицы: 10 м² (обеспечивает автономное отопление);*терраса 19 м².
Второй этаж (130 м²):* свободная планировка — возможность реализовать индивидуальный дизайн‑проект по вашему вкусу.
Коммуникации:* газоснабжение: магистральный газ;* электроснабжение: подведено (30 кВт);* водоснабжение: скважина с системой очистки воды;* канализация: септик;* отопление: газовое, с регулировкой микроклимата.
Особенности участка и территории:* участок правильной формы, огорожен кирпичным забором;* автоматические ворота;* зона для отдыха и барбекю;* место под бассейн и хозяйственные постройки;* возможность благоустройства по индивидуальному проекту.
Инфраструктура КП «Ясенево»:* закрытая охраняемая территория с КПП;* видеонаблюдение по периметру;* асфальтированные внутренние дороги;* детская и спортивная площадки;* гостевая парковка.
Окружение и транспортная доступность:* экологически чистая зона: рядом лесопарковая территория;* удобный выезд на основные магистрали Краснодара;* в шаговой доступности: магазины («Магнит»), аптеки, пункты выдачи маркетплейсов;* остановка общественного транспорта — 2–3 минуты пешком;* школы и детские сады — в близлежащих микрорайонах.
Ключевые преимущества:* большая площадь дома







































