Продается 1к.кв.,
Продается однокомнатная квартира на 3 этаже в сданном доме.
Новый, светлый и современный ремонт - квартира полностью готова к проживанию. Здесь никто не жил и именно вы станете ее первыми жильцами.
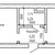
Общая площадь 37.8, комната 16.45, кухня в 13 кв.м. станет идеальным местом для уютных ужинов и дружеских встреч. Санузел 3.49 и прихожая 4.76.
По документам - никаких обременений.
Эта квартира - отличный вариант для тех, кто хочет въехать и сразу жить без лишних хлопот.
Покажем квартиру в удобное для вас время!
Звоните!
Арт. 127817071
Интернет
Телефон
Спутниковое / Кабельное ТВ
Доступно людям с ограниченными возможностями
Консьерж
Охраняемая территория
Мусоропровод
Газ
Огороженная территория
Домофон
Счетчики воды
Пандус
Двор под шлагбаумом
Двор без машин

































