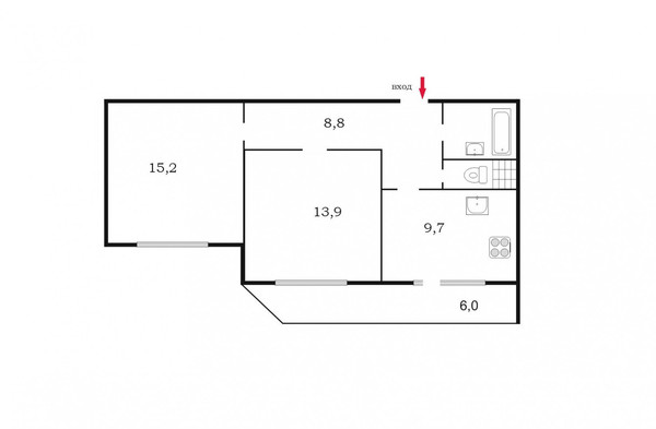
Продаётся 2-х комнатная квартира с дизайнерским ремонтом в ЖК "Невская звезда". Закрытая, охраняемая территория с видеонаблюдением, детской площадкой, двор без машин. Есть подземный паркинг. В подарок покупателю остаётся кухонный гарнитур со встроенной бытовой техникой, встроенный шкаф в коридоре. В санузлах установлена итальянская сантехника, мебель на заказ. До КАД на машине - 3 минуты, до центра - 15 минут, метро Пролетарская - 5 минут пешком! Один взрослый собственник, собственность более 5-ти лет, без обременений, документы готовы.
Арт. 128690773
Интернет
Телефон
Спутниковое / Кабельное ТВ
Доступно людям с ограниченными возможностями
Консьерж
Охраняемая территория
Мусоропровод
Газ
Огороженная территория
Домофон
Счетчики воды
Пандус
Двор под шлагбаумом
Двор без машин





























































