Продается 4к.кв.,
Продается четырехкомнатная квартираВыгодное предложение
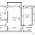
Подойдет как для проживания семьи, так и для сдачи в арендуКомнаты уютные и светлыеСанузел совмещенный с ванной комнатойКосметический ремонт
Во дворе наземная парковка для стоянки автоДружелюбные соседиВся необходимая инфраструктура находится в шаговой доступностиХорошая транспортная развязка
Один взрослый собственникБез обремененийДокументы готовы к переоформлению
Звоните
Арт. 116192802
Интернет
Телефон
Спутниковое / Кабельное ТВ
Доступно людям с ограниченными возможностями
Консьерж
Охраняемая территория
Мусоропровод
Газ
Огороженная территория
Домофон
Счетчики воды
Пандус
Двор под шлагбаумом
Двор без машин















































