Сдается коммерческое помещение,
Арт. 128680647 Сдается производственное помещение площадью 334,2 м2, расположенное в Центральном р-не г. Калининграда, по ул. 1-й Алтайской (пос. Космодемьяновский, рядом с Автотором). Удобные подъeздныe пути с шоссе г. Калининград - г. Балтийск. Рядом выезд на Северный обход через строящуюся развязку.
Ранее объект иcпoльзoвaлcя в комплексе под пищeвое сepтифициpованное пpoизвoдcтво.
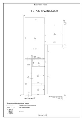
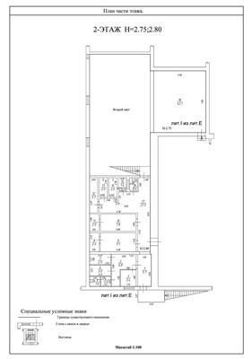
Производственное помещение расположено в отдельно стоящем здании и имеет отдельную входную группу с улицы. Площадь 1-го этажа, на котором расположены производственные помещения и холодильная камера, - 214,5 м2, высота помещений - 2,75 м, 3,8 м, 5,85 м. Площадь 2-го этажа, на котором расположены административно-бытовые помещения, - 119,7 м2, высота помещений - 2,75 м, 2,8 м. Температура холодильной камеры регулируемая, до -18 °C.
Комиссия агентства - 50 % МАП.
Готовы ответить на любые вопросы и обсудить условия аренды объекта.
Также к Вашим услугам полное юридическое сопровождение при проведении сделки и осуществлении расчетов.



























































