Продается 2-ком кв ул.Пушанина 20
Арт. 128894021 Продается 2-ком квартира ул. Пушанина 20
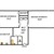
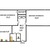
Квартира расположена в кирпичном, 5-этажном доме . Построен в 1977году. Район Терновка.Общая площадь квартиры-46,2 кв м Комнаты изолированные, площадь: 16,5+12,3 кв м Кухня 6,0 кв м Гардеробная- кладовая в квартире- 2,2 кв м Коридор-6,5 кв мСанузел раздельный.Квартира на две стороны света ( распашенка), состоянее жилое.Свободна от проживания, без обременений и долгов.Документы готовы. Один взрослый собственник. Любая форма оплаты.В квартире требуется косметический ремонт.Район с развитой инфраструктурой: рядом школа №20, детский сад №17, детская и взрослая поликлиники, торговый центр Слава, Гидростроевский.Т.Ц. Ритейл- парк. Остановки транспорта- проезд в любую точку города.Оперативный показ.







































