Продается 1к.кв.,
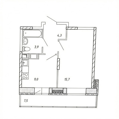
Арт. 128987838 Готовы рассмотреть ЛУЧШИЙ ВАРИАНТ квартиры в этом районе?Хотите получить ЛУЧШУЮ СТОИМОСТЬ квартиры в этом районе?Ищите квартиру с ГАРАНТИЕЙ БЕЗОПАСНОСТИ?Тогда эта КВАРТИРА ДЛЯ ВАС!---------------------------------------------------------------------------------------------------------------------Однокомнатная квартира с большой лоджией (7.5м.)Расположенная по адресу: г. Люберцы, мкр-н Зенино ЖК Самолёт, ул. Барыкина, 5к1, 9/17 этажность. Общая площадь 32.8 м2.---------------------------------------------------------------------------------------------------------------------ИНФРАСТРУКТУРА:- Транспортная доступность: Удобный выезд на основные городские магистрали: МСД, Косинское, Зенинское и Новорязанское шоссе. До м. Некрасовка 10 минут на автомобиле, 20-25 минут пешком.Остановка общественного транспорта 2 мин. от дома (Автобусы 31,31п,1225D,1225А,1232. Маршрутки 16к,1230к)- Школа: №28 - 400 м., детский сад № 1 во дворе дома (200м).- Сетевые магазины: ВкусВилл, Красное&Белое, Магнит, Ермолино, Авокадо- Парикмахерские, Вет. клиника, различные кафе, рестораны, аптеки, пункты выдачи- Зоны отдыха, скверы, детские и спортивные площадки.---------------------------------------------------------------------------------------------------------------------КОММУНИКАЦИИ:- Дом кирпично-монолитной конструкции, построен в 2015 году- Обслуживается управляющей компанией, ухоженные подъезды, пассажирские и грузовые лифты.- Современные инженерные системы, качественные коммуникации, нет аварийных замечаний.
---------------------------------------------------------------------------------------------------------------------КВАРТИРА:- функциональная планировка- изолированная комната- косметический ремонт- большая лоджия — дополнительное пространство для отдыха или хранения.---------------------------------------------------------------------------------------------------------------------ДОКУМЕНТЫ:- 1 собственник;- документы основания – ДДУ;- никто не зарегистрир



















