Продается трехкомнатная квартира
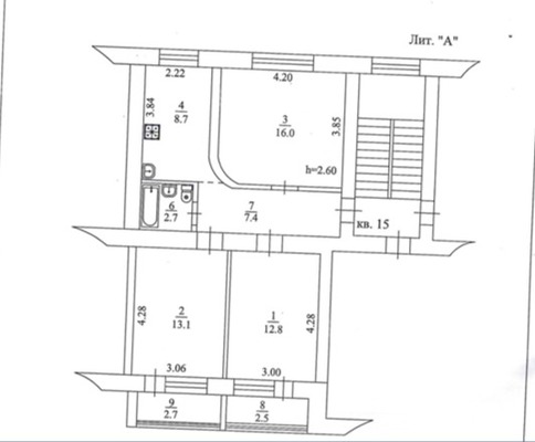
Арт. 129214742 Продается 3-комнатная, просторная квартира на 5 этаже, район Черемушки!!! Все комнаты изолированные. Удобная планировка. Просторная кухня 8,7 кв.м. Две лоджии. Тихий двор, хорошие соседи. Лучший район г. Тихорецка. В шаговой доступности находятся: -гимназия №8;-детский садик;-парк Звездный;-кафе Мама Зоя; -множество продуктовых магазинов; -остановки общественного транспорта.Звоните, записывайтесь на просмотр!!!
Интернет
Телефон
Спутниковое / Кабельное ТВ
Доступно людям с ограниченными возможностями
Консьерж
Охраняемая территория
Мусоропровод
Газ
Огороженная территория
Домофон
Счетчики воды
Пандус
Двор под шлагбаумом
Двор без машин







