Продается 2к.кв.,
Пpoдаётся двухкомнатнaя кваpтира в формате ЕВРО2 с пpоcтоpнoй куxнeй-гocтинoй в ЖК Sеvеrin
Кухня-гocтиная это то место, где проводят время всей семьёй. Здесь готовят, принимают пищу и отдыхают на удобном диване. Кухня оснащена современным кухонным гарнитуром и всей необходимой встроенной техникой (посудомойка, духовка, холодильник). Имеется выход на застеклённую лоджию.
Две просторные спальни могут стать прекрасным местом не только для сна, но и для дневного времяпрепровождения
Два санузла очень просторные и могут вместить ещё дополнительную необходимую технику или системы хранения
Прихожая "раскрытого типа". Никаких узких коридоров, широкое. объёмное пространство. Несколько человек могут спокойно одеваться и не мешать друг другу.
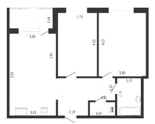
Кухня-гостиная - 18,1 м2Спальня 1 - 13,1 м2Спальня 2 - 11,4 м2Санузел 1 - 4,2 м2Санузел 2 - 1,7 м2Прихожая - 8,4 м2Балкон - 3,6 м2
Дом с концепцией "двор без машин", и если у вас дети, то это сэкономит ваши нервы пока они гуляют на улице. Дом с концепцией "двор без машин", и если у вас дети, то это сэкономит ваши нервы пока они гуляют на улице. Дворовая территория заслуживает особого внимания, т.к. имеется обширное количество детских и спортивных площадок, расчитанных на разный возраст.
В доме два лифта, но данная квартира находится на 4 этаже и многие могут этому позавидовать, потому что это позволяет не зависеть от лифта. В подъезде оборудованы колясочные и система видеонаблюдения.
Парковка большая и у вас всегда будет возможность припарковать машину в непосредственной близости.
В данном и соседнем доме есть продуктовые магазины, круглосуточная аптека, пункты выдачи маркетплейсов, кафе, пекарни.
Хорошая транспортная развязка, рядом автобусные остановки в оба направления, поликлиника через дорогу (детское и взрослое отделение больницы), детский сад "Брусничка", "Антошка", "Одуванчик", недалеко школа №7, теннисный центр и прочие спортивные секции, выставочный центр.
Данную квартиру можно приобрести в ипотеку. Зв
Арт. 129245172

















































