Продается дом,
Продаётся шикарный 1 этажный дом в Шалушке по ул. Северная!Идеальный выбор для большой семьи, ценящей качество, уединение и комфорт.
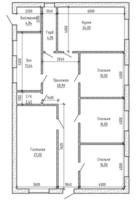
Это добротный дом площадью 152 КВ. М., расположен на участке 4.8 сотках земли.Все коммуникации проходят рядом с участком.
4 большие спальные комнаты, большая кухня гостиная с кладовой, 2 раздельных санузла. Всё сделано для вашего комфорта!
Один собственник. Документы готовы к продаже.Без обременений.Полное юридическое сопровождение.Звоните.
Арт. 129420565
Охраняемая территория
Огороженная территория
Круглогодичный доступ
Телефон
Интернет
Спутниковое / Кабельное ТВ
Гараж
Баня / Сауна
Бассейн
Бойлер
Мансарда
Возможна прописка
Лес
Терраса
Погреб
Душ
Водоем













































