Сдам коммерческое помещение 971,7 м2, Вельяминовская ул, 34с7, Москва г
Сдается функциональный офисно-складской производственный комплекс с отдельным заездом с улицы Ткацкая ( ориентир дом 12).
Три отдельных здания, строения 7-8-9 ( см на карту и поэтажные планы) объединенных одним двором.
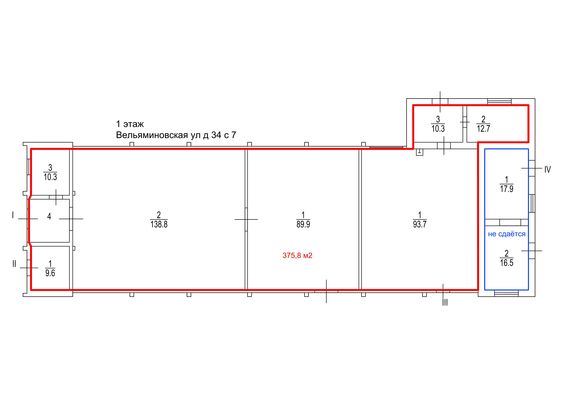
Строение 7кирпичное здание с двускатной крышей ( есть покрасочная кабина с вентиляцией) -375,8 метров, можно использовать под производство, электричество- 50 КВ, нагрузка на пол- мах. К этому зданию пристройка -75 метров, отапливаемая.
Строение 8. Холодный склад-ангар -250 метров ( строение 8), площади под производство- с возможностью отопления- 113,9 метров.
Строение 9. Отдельно стоящее кирпичное офисное здание- 137 метров.
Двор отдельный, со своим въездом с улицы, отдельные ворота.
Вниманию тех, кто смотрит это объявление на Авито. Комиссия агентства- 50% от месячной аренды.
Помещение требует ремонта, будем готовы предоставить арендные каникулы.
Организуем оперативный показ. Звоните!































































