ДОМ 190 кв м на участке 4.2 сот
Арт. 128443368 Продаётся уютный дом в сердце Витязево !!!
Предлагается к продаже комфортабельный жилой дом в живописнейшем районе курорта Витязево, Идеальное место для проживания
Преимущества объекта --просторная жилая площадь с удобной планировкой,собственный благоустроенный участок земли с плодовыми деревьями --Дом готов принять новых владельцев немедленно после сделки купли-продажи. Обращайтесь сегодня, чтобы стать владельцем дома мечты уже завтра!
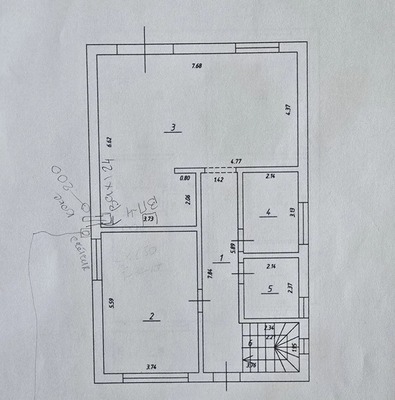
---- дом 189,9 м² на участке 4,2 сотки Предчистовая отделка, гараж, парковка , ухоженный сад с плодовыми деревьями, ,терасса - беседка.Планировка: — 1 этаж: прихожая 17,2 м², кухня-гостиная 38 м², спальня 17,6 м², санузел 5 м² — 2 этаж: 4 спальни (32, 19,7, 15 и 10,5 м²), санузел раздельный Коммуникации: свет 15 кВт, центральная вода, газ, септик️В шаговой доступности: храм, поликлиника, администрация, магазины, кофейня. Развлечения: аквапарк, цирк, дельфинарий, кафе, экскурсии, море ️Полная стоимость в договоре. Приветствуется любая форма расчета.Если не можете приехать в Анапу лично – есть возможность проведения дистанционной сделки, с онлайн показом, с расчетом через банковский аккредитив.Ликвидность этой квартиры очень высокая - Вы всегда сможете быстро и выгодно ее продать. Цены в Анапе только растут.ДЛЯ ВАС:- Полное юридическое сопровождение сделки,- Возможность онлайн показа и покупки дистанционно БЕЗ ПРИЕЗДА В АНАПУ,- Работаем с военной ипотекой и мат. капиталом,- Квалифицированные сотрудники. ДОКУМЕНТЫ ПРОШЛИ ЮРИДИЧЕСКУЮ ПРОВЕРКУ И ГОТОВЫ К СДЕЛКЕ.Наша деятельность застрахована в соответствии с «Правилами страхования ответственности при осуществлении риэлторской деятельности», мы являемся действительным членом Российской гильдии риэлторов (РГР) и «Кубанской Палаты Недвижимости».Звоните! Все расскажу и покажу! Пока цены немного остановились, нужно успеть!

































