Продается дом,
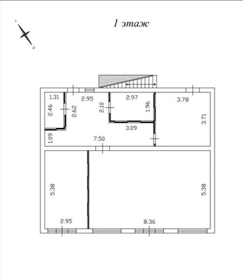
Арт. 129682137 Прекрасный уютных 2-х этажный дом расположенный в коттеджном поселке РЭД.Дом: Газобетон, перекрытия деревянные, высота потолком 2,8.Планировка включает:1 этаж: Просторная гостиная, 1 комната, 1 санузел, бойлерная 2 этаж просторную кухню - гостиную, три изолированных спальни. Коммуникационные системы : автономное водоснабжение из скважины 56 м, канализация, электричество, отопление электрическое. Коттеджный поселок РЭД находится в 35 км от города, асфальтированная дорога до поселка и на территории, освещение.
Покупая недвижимость с компанией Семь Высоток, вы получаете: безопасность сделки, максимально выгодную ставку по ипотечному кредитованию, а также гарантийный сертификат юридической чистоты объекта недвижимости сроком на 3 года. Все наши сделки застрахованы страховой компанией РЕСО. Для приобретения данной квартиры в ипотеку оформите заявку в нашем офисе. Банки партнеры Сбербанк, ВТБ, Газпромбанк, Альфа банк, Росбанк, ДОМ.РФ.





























































