Продам трехкомнатную (3-комн.) квартиру, 2-я Владимирская ул, 3, Москва г
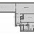
Код объекта: 2034558.<br>Уникальное предложение в Москве: трёхкомнатная квартира на 2-й Владимирской улице, 3.<br><strong>Тёплая, светлая 3-комнатная квартира-распашонка</strong> в кирпичном доме индивидуального проекта, прямо напротив Измайловского парка.<br>О доме: кирпичный многоквартирный жилой дом индивидуального проекта, железобетонные перекрытия.<br>О квартире: квартира полностью подготовлена под ремонт, выполнен демонтаж старых покрытий, планировка «распашонка», три комнаты, три кладовые, раздельный с/у, кухня, прихожая и балкон.<br>Локация: дом во дворе, в шаговой доступности: школы и детские сады, магазины и поликлиники, бассейн «Луч», стадион «Авангард».<br>Транспорт: метро Перово — 15 минут пешком, Шоссе энтузиастов метро и МЦК — 8 минут транспортом.<br>Документы готовы: один взрослый собственник, квартира в одной семье с момента постройки дома, без обременений.<br>Мы гарантируем безопасную сделку и юридическую поддержку нашим клиентам.<br>Поможем одобрить ипотеку со сниженной ставкой.































