Коттеджный поселок в Крыму!
Арт. 129690759 Продажа жилого домов в Крыму у леса, в предгорье!
Симферопольский район, центральная часть села Краснолесье, в современном, уютном коттеджном поселке.
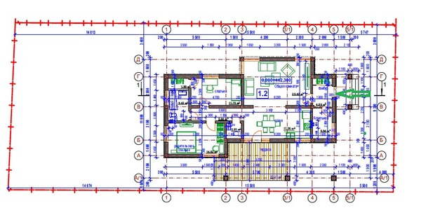
Жилой дом - площадь: 100,97 кв.м.· Две спальни: комната: 11,7 кв.м. с одним окном + гардеробная; комната: 14,82 кв.м.с двумя окнами.· Кухня гостиная: 17,36 + 22,42 кв.м. с выходом на террасу: 22,47 кв.м.( плюс к площади)· Санузел раздельный: 5,42 кв.м.+ 2 кв.м.· Тамбур и коридор: 4,55 кв.м.+ 5,54 кв.м.· Топочная-тех помещение-кладовая: 5,04 кв.м.· Навес для авто: 30 кв.м.( плюс к площади)· Потолки: 3 метра.· Окна качественные, большие, много света.Коттеджный посёлок построен в соответствии со всеми строительными нормами в едином архитектурном стиле.
Дом: 2024 года постройки.
Приятным бонусом - навес для авто под одной крышей с домом и терраса для отдыха!Дом в пред. чистовой отделке, как на фото!
Земельный участок: 6 соток.Каждый участок огорожен забором.
На территории:- две улицы, три ряда домов, - на коттедж выделена своя электрическая подстанция, - интернет, - уличное освещение,- территория закрытая, огорожена, будет установлен дистанционный управляемый шлагбаум и камеры видеонаблюдения.- в ближайшее время планируются возведение детской игровой площадки с зоной отдыха, - работы по асфальтированию кольцевой дороги, одна улица уже за асфальтирована - двух полосная, с пешеходной тропинкой и сливами от дождевой воды.- ведутся работы по озеленению территории.
Коммуникации все в наличии, все подключены:- На коттеджный поселок своя ТП 150 кВт.- Электричество в доме: 5 кВт. - Газ центральный, вытяжка- Отопление индивидуальное – газовый котел в доме. - Теплый пол в холле, санузле и в кухне гостиной; в комнатах батареи.- Канализация: у каждого дома своя яма – септик, одна яма два кольца и вторая переливная яма два кольца.- Вода у каждого дома своя личная скважина от 40-60 м, вода не верховая, вода питьевая. - Вода в доме и вода на участке для полива-два выхода.- Естественная вытяжка в доме.
Докум

























































