Арт. 129913075 Продается теплая светлая двухкомнатная квартира, расположенная по адресу г. Котельники, мкр Силикат, 5. Видовой 10 этаж!!!
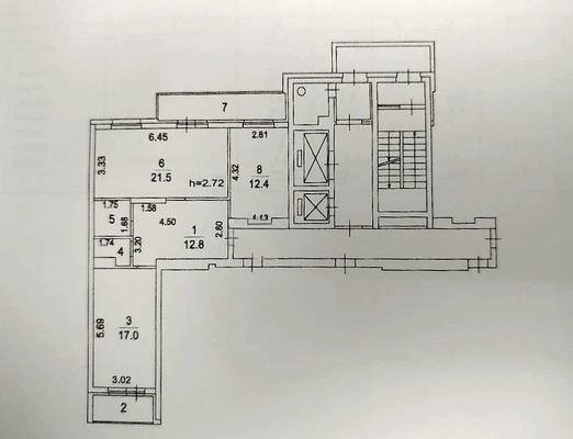
1. Полная комплектация мебелью и бытовой техникой обеспечат комфорт и удобство, кондиционеры на кухне и в большой комнате гарантируют прохладу жарким летом2. Общая площадь 68,4 м² идеально спланирована для комфортной жизни3. Просторная кухня 12,4 м²– уютное место для семейных вечеров 4. Во всей квартире натяжные потолки и теплые полы (Ленинградская система – нет стояков, трубы в полу)5. Раздельный с/у, стены и пол в плитке6. Две лоджии (большая на кухню и комнату и маленькая)6. Двор с детской площадкой7. Наземная парковка
Развитая инфраструктура района:- в шаговой доступности два детских сада и школа- рядом сетевые магазины Пятерочка, Магнит, Чижик- через дом фитнес-клуб- в соседнем квартале детская поликлиника- буквально в 7 минутах езды Большой Люберецкий карьер — это живописное место, где можно насладиться красивыми видами и отдохнуть на песчаных пляжах.
Удобная транспортная доступность: - до метро Котельники на общественном транспорте 20 мин, на автотранспорте 12 мин- до Новорязанского шоссе 7 минут автотранспортом (2,81 км) - до выезда на МКАД через Новоегорьевское шоссе 5 минут (2,6 км)
Дополнительно: 1. Один взрослый собственник более 5 лет, 2. Материнский капитал не использовался 3. Ограничений и долгов нет 4. Квартира готова к быстрому выходу на сделку
Эта квартира представляет собой отличное предложение для тех, кто ценит комфорт, качество и удобное расположение.
Убедиться в благоприятной атмосфере этой квартиры Вы сможете лично при просмотре в удобное для Вас время. Звоните нам прямо сейчас, чтобы узнать больше и записаться на просмотр этой замечательной квартиры!
Интернет
Телефон
Спутниковое / Кабельное ТВ
Доступно людям с ограниченными возможностями
Консьерж
Охраняемая территория
Мусоропровод
Газ
Огороженная территория
Домофон
Счетчики воды
Пандус
Двор под шлагбаумом
Двор без машин















































