Продается 1к.кв.,
Арт. 129989004 ПОКУПАТЕЛЬ НАЙДЕН!Продам 1к квартиру в ЖК "Сияние Севера", по адресу 3й проезд Можайского 12!Квартира находится на 9м этаже 10ти этажного дома 2012 года постройки. Не угловая!
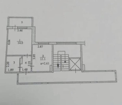
Общая площадь: 37 м (с учетом холодного помещения)Жилая площадь: 14 мКухня: 11,1 м
Квартира в жилом состояние, ремонт от застройщика.В квартире остается: кухонный гарнитур, газовая плита, обеденная зона, шкаф, комод, диван, шкаф в прихожей, стиральная машина - отличный вариант для счастливого проживания или сдачи в аренду!На лоджии установлены пластиковые стеклопакеты.
Тамбур на 3 квартиры. Чистый подъезд. Дружелюбные соседи.На этаже имеется кладовка.Двор с оборудованной детской площадкой.Развитая инфраструктура. В шаговой доступности детский сад №71, "Метелица", школа№71, ФОК, поликлиника, ТЦ Домино. До остановки общественного транспорта 7 минут ходьбы.Квартира без долгов и обременений. Свободная от регистрации. Один взрослый собственник.В собственности более 5 лет.
Звоните прямо сейчас и записывайтесь на просмотр!





































