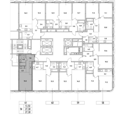
Продается 1 комнатная квартира в ЖК" Страна. Озерная"- бизнес-класса. Многосекционный дом " БАЙКАЛ", по адресу: г. Москва, ул. Озерная, д 42, от метро ст. Озерная, 2 минуты пешком. Квартира расположена на 10/25 монолитного дома, первая секция. Ввод в эксплуатацию 2026 г ( 2 квартал). Общая площадь 28 кв м . Жилая 14 кв м. Кухня-ниша 2,50 кв м. Санузел совмещенный. Холл 7 кв м . Окна - на улицу. Инфраструктура: школы 1741, 2025,1329, 843, при которых работают восемь детских садов. Отличный вариант для студентов. Около ЖК заказник " Долина реки Очаковки" и " Парк школьников", на территории которых находятся Очаковые пруды. ЖК находится Тропаревский лесопарк 220га. Один собственник. Договор долевого участия . Свободная продажа.
Арт. 131169605
Интернет
Телефон
Спутниковое / Кабельное ТВ
Доступно людям с ограниченными возможностями
Консьерж
Охраняемая территория
Мусоропровод
Газ
Огороженная территория
Домофон
Счетчики воды
Пандус
Двор под шлагбаумом
Двор без машин
Похожие объекты
Продам однокомнатную (1-комн.) квартиру, Большая Очаковская ул, 44к1, Москва г
Большая Очаковская ул, 44к1
17 200 000
Продается 3к.кв.,
Большая Очаковская ул, 44к1
28 500 000
Дешевле застройщика на 5 млн!!!
Озёрная ул, 42
19 990 000
Продается 2к.кв.,
Озёрная ул, 42
22 000 000







