Продается коммерческое помещение
Арт. 129687177 Продажа коммерческого помещения 140,6 м² в центре Калининграда, напротив ТЦ Плаза
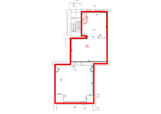
Продается коммерческое помещение в центре Калининграда общей площадью 140,6 м². Объект разделен на два отдельных блока (75,2 м² и 65,4 м²) и сдается в аренду, что делает его готовым инвестиционным активом с пассивным доходом. Удачная локация — напротив ТЦ «Плаза», в зоне высокой проходимости.
Преимущества объекта:- Помещение с арендатором — подходит для инвестиций и получения пассивного дохода- Высокие потолки 3,35 м- Свежий косметический ремонт- Охрана, видеонаблюдение, пожарная сигнализация- Готовность к подключению интернета
Звоните для просмотра и подробной информации о сделке.
Ремонт за счет владельца
Возможность менять провайдера
Первая линия
Ресторан
Фитнес
Банк
Банкомат
Супермаркет
Арендные каникулы
Интернет
Доступ 24 часа
Видео-наблюдение
Охраняемая территория
Контроль доступа
Есть оборудование
Отдельный вход















