Сдам теплый склад в г. Березовский
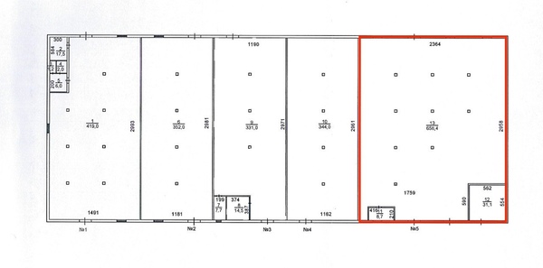
Сдам в аренду отапливаемый склад в г. Березовский. Отличная транспортная доступность. Имеется подъезд крупногабаритного транспорта. Так же свои железнодорожные пути и рампа. Электроэнергия: 50 кВт. Высота потолков: 5 м. Пол: антипыль. Дополнительно оплачивается отопление и электроэнергия. Стоимость без НДС. Приглашаю на просмотр!
Кран
Таможня
Жд сообщение
Парковка для грузового транспорта
Порт
Интернет
Доступ 24 часа
Видео-наблюдение
Охраняемая территория
Контроль доступа
Похожие объекты
Аренда промышленно-складского помещения
Западная промзона тер, 13А
890 000 месяц
Аренда промышленно-складского здания
Западная промзона тер, 24а
533 400 месяц
Сдам гараж в Старопышминске
Леонтьева ул, 11А
70 600 месяц
Аренда промышленно-складского помещения
Западная промзона тер, 13А
270 000 месяц
Помещение под легкое производство в 10 км от Екатеринбурга.
Леонтьева ул, 11а
135 500 месяц



















