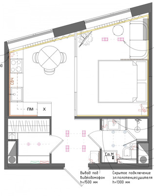
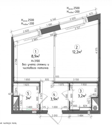
Арт. 131974800 Идеальная студия в престижной локации с панорамными видами как в Дубае!- 55 этаж - панорамный вид на город, если вы любите простор и воздух, когда шум от магистралей остается внизу;- Уникальный Sky-парк на высоте 12 метров. Гектар живой природы, закрытой территории, где нет машин. Игровые площадки, спортзоны и цветущие аллеи для прогулок. Это ваш личный природный заповедник прямо у порога дома, где можно отдыхать от мегаполиса;- Готовая жилая экосистема комплекса: внизу, в стилобате, уже работают супермаркеты, кафе, рестораны и фитнес.-Технологии и комфорт: в доме установлены скоростные лифты, центральное кондиционирование, подземный паркинг с кладовыми для хранения, работает Консьерж-сервис в приложении, современные лобби от дизайнера Константины Кьюзак;-идеальная транспортная доступность: мгновенный выезд на проспект Маршала Жукова и Северо-западную хорду (1 минута), Пешая доступность до метро станции БКЛ «Народное Ополчение» в 10 минутах;-Планировка: самое ценное в студии два панорамных окна, которые разбивают пространство на две равные, но разные по настроению части, есть возможность отделить кухню от спальни. Большой совмещенный санузел. Просторная гардеробная комната. Высокие потолки. Установлена компактная и стильная кухня. Агентство с рейтингом 5,0 на Яндексе профессионально и с радостью предоставит покупателю одобрение по ипотеке в любом банке, гарантия юридической чистоты сделки. Звоните, приезжайте на просмотр, Вам понравится!
Интернет
Телефон
Спутниковое / Кабельное ТВ
Доступно людям с ограниченными возможностями
Консьерж
Охраняемая территория
Мусоропровод
Газ
Огороженная территория
Домофон
Счетчики воды
Пандус
Двор под шлагбаумом
Двор без машин

















































