Продам двухкомнатную (2-комн.) квартиру, Болотниковская ул, 1к3, Москва г
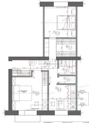
Код объекта: 2058001.<br><strong>🏠 Характеристика дома (сталинская/кирпичная пятиэтажка)</strong><br><ul><li><strong>Основные параметры</strong>: Год постройки — <strong>1958</strong> . Это 5-этажный кирпичный дом . В нем 4 подъезда и ровно 60 квартир. Лифт и мусоропровод отсутствуют .</li><br><li><strong>Техническое состояние</strong>: Несущие стены — кирпич, перекрытия — железобетонные . Фундамент ленточный . Износ дома оценивается в <strong>39%</strong> (состояние "исправный") . Класс энергоэффективности низкий (D) .</li><br><li><strong>Коммуникации</strong>: Все системы централизованные: отопление, водоснабжение (ГВС - открытая система), канализация. В дом проведен газ . Вентиляция вытяжная, естественная .</li></ul><br> <br><strong>🛠️ Управление и ремонт</strong><br><ul><li><strong>Управляющая организация</strong>: ГБУ «Жилищник Нагорного района» </li><br><li><strong>Капитальный ремонт</strong>: Средства собираются на счете регионального оператора .</li><br><li><em>Что уже сделано</em>: В 2015 году заменили крышу, отремонтировали системы электро- и теплоснабжения, холодного водоснабжения .</li><br><li><em>Что планируется</em>: Замена стояков ХВС и ГВС (2021-2023), ремонт фасада и электрики (2030-2032), ремонт крыши и теплосетей (2039-2044) .</li></ul><br> <br><strong>🌳 Инфраструктура района (Нагорный)</strong><br><ul><li><strong>Благоустройство</strong>: Во дворе есть детская и спортивная площадки . Парковка .</li><br><li><strong>Социальная и торговая инфраструктура</strong> (в шаговой доступности):</li><br><li><em>Садики</em>: Школа №1450</li><br><li><em>Школы</em>: Школа №1450 («Олимп») .</li><br><li><em>Супермаркеты</em>: «Дикси», «ВкусВилл», «Перекресток».</li><br><li><em>МФЦ</em>: Центр госуслуг.</li></ul><br> <br>Продаётся двухкомнатная квартира площадью 57 кв.м. на Болотниковской улице, 1к3.<br>На 4 этаже 5-этажного дома, имеет две изолированные комнаты (11,8 кв. м и 15,6 кв.м.) и кухню площадью 9 кв.м. Дизайнерский ремонт создаёт атмосферу уюта и комфорта, а высокие потолки (2,7 м) добавляют пространству воздуха и свободы. Балкон — отличное место для отдыха и утреннего кофе.<br>Звоните нам прямо сейчас, чтобы узнать больше и записаться на просмотр! Мы гарантируем безопасную сделку и юридическую поддержку нашим клиентам. Поможем одобрить ипотеку со сниженной ставкой.<br>Уникальное предложение в одном из самых удобных районов Москвы!



































