Продается дом,
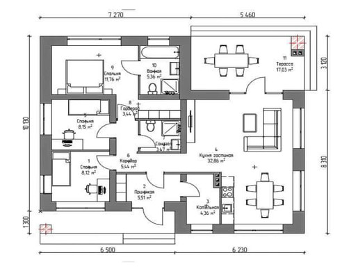
Арт. 132281589 Планитуется строительство Дома 100 кв.м + Участок 6,46 соток в прекрасной локации в Центре города. Вся инфраструктура в шаговой доступности. Хорошие подьездные пути. Рядом магазины, школа и детский сад в 10 минутах ходьбы. Строительство завершиться в июне 2026 года. Преимущества дома: — продуманная планировка: три отдельные комнаты и просторная кухня-гостиная с выходом на террасу; — родительская комната и с собственным санузлом; — ровный участок земли правильной формы, на котором можно реализовать любые дизайнерские идеи,построить Гараж, Баню, Чан и т.д.; Финансовые условия: — скидки при оплате за наличный расчёт; — помощь в оформлении семейной ипотеки; — возможность оплаты по системе trade-in; — индивидуальные условия и подход. Не откладывайте решение о покупке — звоните прямо сейчас, и я оперативно организую показ и расскажу техническую часть проэкта! Можем построить по вашему проекту или проекту из нашего каталога. Ваш будущий дом ждёт вас!









