Арт. 132386256 ВНЕСЕН ЗАЛОГ ДО 25 мая! Квартиру пока не показываем,
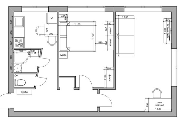
Продается уютная 2-комнатная квартира площадью 48,5 кв. м в тихом районе. Квартира расположена на 5-м этаже 5-этажного дома, построенного в 1964 году. Жилая площадь составляет 33 кв. м, а кухня — 6 кв. м. Высота потолков — 2,5 метра. До станции метро «Московская» всего 10 минут пешком, что позволяет быстро добраться до центра города.
В квартире сделан дизайнерский ремонт, что создает атмосферу уюта и современного стиля. Все комнаты полностью меблированы, кухня оснащена необходимой бытовой техникой. Санузел совмещенный, выполнен в современном стиле. Окна выходят во двор, поэтому в квартире тихо и спокойно, что идеально для комфортного проживания.
Дом находится в хорошем состоянии, территория оборудована наземной парковкой, поэтому можно быть уверенным в наличии места для вашего автомобиля. В районе развита инфраструктура: рядом есть школы, детские сады, клиники и магазины, что делает проживание здесь удобным и комфортным.
Квартира готова к продаже. Все документы в порядке, возможна ипотека. Это отличное предложение как для личного проживания, так и для инвестиций.
Приглашаем вас на просмотр, чтобы оценить все преимущества этой квартиры. Записывайтесь на удобное для вас время, будем рады ответить на все ваши вопросы.
Интернет
Телефон
Спутниковое / Кабельное ТВ
Доступно людям с ограниченными возможностями
Консьерж
Охраняемая территория
Мусоропровод
Газ
Огороженная территория
Домофон
Счетчики воды
Пандус
Двор под шлагбаумом
Двор без машин















































