Загородный дом 100м² на 10 сотках
Мечтаете о собственном доме, где классика встречается с комфортом? Представляем вам идеальный одноэтажный дом площадью 100 кв.м. на участке 10 соток – воплощение практичности и стиля!
Снаружи – эстетика и долговечность:*Облицовка из керамического кирпича в баварской кладке придает дому неповторимый классический шарм.*Мягкая кровля обеспечивает надежность и бесшумность.*Утепленный цоколь и утепленные стены гарантируют тепло и уют в любое время года.*Большая терраса 20 кв.м. – идеальное место для семейных обедов и отдыха на свежем воздухе.
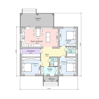
Внутри – продуманность до мелочей:*Функциональная планировка включает три уютные спальни, два санузла, отдельный тамбур и бойлерную.* Сердце дома – просторная кухня-гостиная, где вы сможете собираться всей семьей и принимать гостей.* Для вашего комфорта по всему дому установлены **теплые полы**.* Выполнена качественная отделка White Box: стены выровнены и готовы к финишному покрытию, пол подготовлен. Вам остается лишь воплотить свой дизайн-проект!
Участок и инфраструктура:* Дом расположен на 10 сотках земли с выполненным благоустройством.* По периметру участка растут вековые сосны и березы, создавая уединенную атмосферу.* Все коммуникации заведены: газ и электричество уже есть!* Живите в комфорте: асфальтированные улицы, уличное освещение, общественные зоны отдыха для жителей. Рядом – управляющая компания, готовая помочь с любыми вопросами.
Заезжайте, доделывайте интерьер под себя и наслаждайтесь жизнью за городом с городским комфортом.
Дополнительные услуги: Помощь в оформлении ипотеки без первоначального взноса, а также полное юридическое сопровождение.
Подробную информацию об указанном объекте недвижимости уточняйте по телефону или в офисе компании.Звоните! Пишите!
Арт. 132390321















