Продается дом,
Данный объект можно приобрести по субсидированной ставке от 14.3% на весь срок или от 2,01% на первые два года, что существенно снизит ваш ежемесячный платеж и сумму переплаты. Данная программа подходит для всех граждан!
Адрес: г. Дмитров, дер. ОвсянниковоНаправление: Дмитровское шоссеРасстояние от МКАД, км: 68Площадь участка, сот.: 6,28Площадь дома, м2: 68,7Назначение земельного участка: Для индивидуального жилищного строительстваКоммуникации: Электричество 15 кВт по границе
Дополнительное описание:Участок правильной прямоугольной правильной формы, сухой. Хороший круглогодичный подъезд.
На участке расположены:
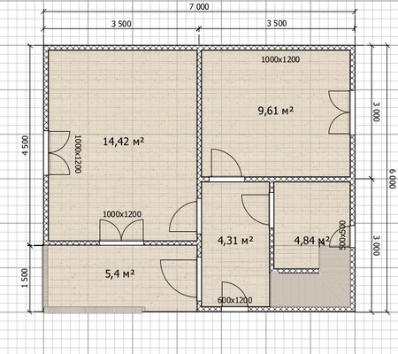
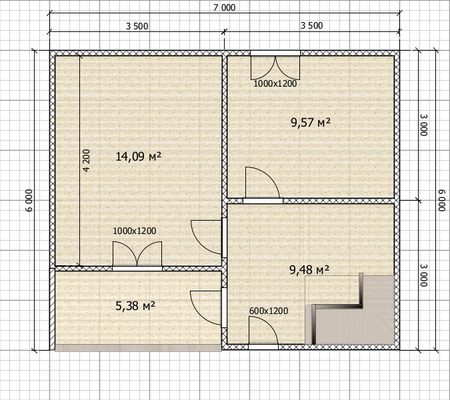
Жилой дом, предназначенный для круглогодичного проживания, общей площадью 68,7 кв.м. 2х этажный, выполнен по современной каркасной технологии, фундамент сваи, снаружи обшит имитацией бруса хвойных пород камерной сушки по контр-рейке, внутри отделка вагонкой хвойных пород камерной сушки. Крыша покрыта металлочерепицей. Окна ПВХ. Входная дверь с терморазрывом. Планировка первого этажа: кухня-гостиная, спальня, санузел, терраса. Планировка второго этажа: две спальни, холл, балкон с панорамным видом.
Описание населенного пункта: деревня Овсянниково расположена в экологически чистом районе Дмитровского района. В шаговой доступности совхоз Буденновец где есть вся инфраструктура: автобусная остановка, детский сад, начальная школа, продуктовые магазины, отделение МФЦ, почта, спорт-зал, футбольное поле, дворец культуры, детские площадки. До г.Дмитров 10 мин на машине. Соседи построились и проживают круглогодично. В 2х км от участка находится Жестылевское водохранилище, идеальное место для купания, рыбной ловли и катания на разных видах водного транспорта.
Легко купить:Права собственности на участок и жилой дом — зарегистрированы (на физ. лицо), присвоен почтовый адрес. Возможна продажа с привлечением ипотечных средств. Поможем одобрить ипотеку при необходимости.
Звоните! Записывайтесь на показ объекта прямо сейчас.Рады будем ответить на все ва
Арт. 132869704

































