Продается дом,
Арт. 132888143 Современный готовый дом в деревне. ИЖС.
ВОЗМОЖНА ИПОТЕКА.
Продается 1 эт полностью готовый к проживанию дом в д. Степаньково (КП Горки 9-18) рядом с пос. Нудоль Клинского района.79 км от МКАД по Новорижскому или Волоколамскому шоссе, трасса М-11. Электропоезд до ст. Новопетровская Волоколамского направления.
Поселок как часть деревни расположен на живописном холме на берегу речки. Многие уже построились.Отличная асфальтовая дорога до участка. Круглосуточная охрана. Солидный КПП на въезде.Автоматический шлагбаум. Открывается с метки, брелка или охранником.Отсыпанные асфальтовой крошкой дороги. Глубокие дренажные канавы.Уличное освещение с датчиками темноты.Заведен оптико-волоконный интернет.
Участок расположен недалеко от въезда, в прямой видимости охраны, Это обеспечивает беспрепятственный подъезд , в том числе и после сильного снегопада, так как этот участок дороги чистят и ремонтируют первым.
Уютный дом 90.8 м2 построен в 2024г. по теплой каркасной технологии.Утепление стен, пола и потолков 200мм (минвата).Снаружи покрашен в свежий голубой цвет с белыми наличниками. Фундамент ж/б сваи на глубину до 3,5 м.Крыша металлочерепица со снегозадержателями. Окна двойной стеклопакет.Внутри интерьеры выполнены в современном стиле. Дом оборудован системой "Умный дом": с управлением через программу или голосом: подсветка с датчиками движения, умный карниз, выключатели, розетки, вытяжка и котел.Возможность включить или выключить любое оборудование дома удаленно (голосовой помощник можно поставить любой).На полах жилых помещений ламинат, в с/у и бойлерной плитка. Стены оклеены обоями, в с\у плитка.По всем помещениям дома обустроены водяные теплые полы.
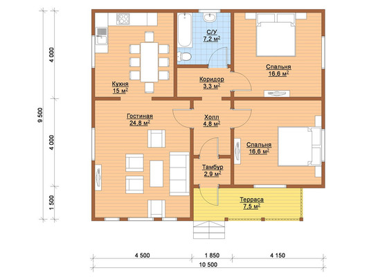
Удобная планировка включает в себя всё необходимое для жизни.На входе крытая терраса 7,5 м2, тамбур 3 м2, холл 8 м2, гостиная 25 м2, отделенная от нее изящной аркой кухня 12 м2, две спальни по 17 м2, совмещенный с/у и второй туалет-бойлерная, где расположены все коммуникации дома.Есть люк на чердак с выд

































