Продам двухкомнатную (2-комн.) квартиру, Садовая-Каретная ул, 8с2, Москва г
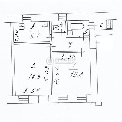
Код объекта: 2082713.<br>Уникальное предложение в сердце Москвы: просторная двухкомнатная квартира на Садовой-Каретной улице, 8с2.<br>От метро — неспешным шагом вы попадаете в уютный московский дворик. Здесь стоит кирпичный малоквартирный дом 1917 года постройки всего на 16 квартир — камерный, малоэтажный, всего 4 этажа, с настоящей историей.<br> <br>Во дворе — прогулочная зона с лавочками, утопающая в зелени деревьев и кустарников. Вокруг — такие же невысокие дома, создающие редкое для Москвы ощущение уюта и тишины. Адрес — Садовой-Каретной улице, 8с2. Кстати, именно здесь в 1962 году снимали фильм «Мой младший брат».<br> <br>Подъезд встречает атмосферой старой Москвы: кованые перила, высокие оконные проёмы, всего две квартиры на этаже — никакой суеты, только пространство и воздух.<br> <br>В квартире сохранена лепнина на потолке — редкая деталь, высота потолков 3,2 задаёт характер всему пространству. Без перепланировок, с честной архитектурой. Окна выходят на обе стороны дома, кстати окно есть в санузле — редкость для Москвы, добавляющая света и уюта. Хочется отметить наличие большой кладовой комнаты в ванной, что дает возможность сделать сауну или гардеробную.<br> <br>Здесь ощущается не просто квартира — здесь чувствуется время, стиль и та самая Москва, которую уже сложно найти.<br> <br>Это идеальный выбор для тех, кто ценит комфорт и хочет жить в одном из самых престижных районов Москвы.<br>3 станции метро в 9 мин пешком от дома, и 4 станции метро в 10 минутках пешком от дома, 12 школ, 60 магазинов, 14 детских садов<br> <br>Не упустите шанс стать владельцем этой прекрасной квартиры! Позвоните нам прямо сейчас, чтобы узнать больше и записаться на просмотр. Мы гарантируем безопасную сделку и юридическую поддержку нашим Клиентам. Поможем одобрить ипотеку с сниженной ставкой.



















































