Продается студия,
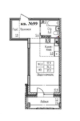
Арт. 133030706 В продаже квартира с ремонтом в центре города ПОДХОДИТ ПОД СЕМЕЙНУЮ ИПОТЕКУ 6% в сданном доме!!! Ключи в день сделки!Жилой дом с подземной автостоянкой расположен в хорошем и тихом районе города. По близости расположены школы, детские сады, медицинские и культурные учреждения, а также в шаговой доступности размещены торговые центры. До остановки общественного транспорта идти не более 5 минут.Дом состоит из 2-х блок-секций и имеет 10 этажей. Есть подземный этаж для парковочных мест и помещений для хранения шин, а на 1 этаже располагаются помещения общественного назначения. Подземная автостоянка имеет эксплуатируемую кровлю, на которой расположены спортивные и детские площадки, а также пешеходные дорожки.Оригинальная Г-образная форма студии разделяет холл и жилое пространство.В большой прихожей предусмотрен гардероб. В санузле легко помещается мебель для ванной и сантехника, стиральная и сушильная машины.Просторная кухонная зона позволяет организовать удобное обеденное пространство, разместить кухонную технику.Сопровождение сделки - БЕЗВОЗМЕЗДНО!Есть другие планировки, с ремонтом и без! Проведу экскурсию!





















