Квартира в спальном районе.
Арт. 132814756 Трёхкомнатная квартира "зайти и жить", в спальном районе Симферополя с развитой инфраструктурой!
Республика Крым, Симферополь , ул. Киевская 161.
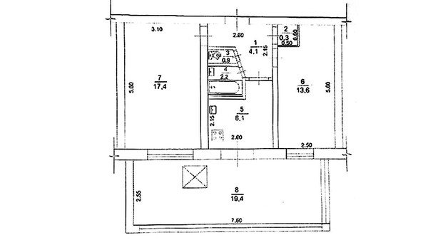
Расположена на 1-м этаже 5 этажного дома.Квартира общей площадью 64, кв. м., жилая 31, кв. м.Комнаты раздельные 17,4 кв. м., 13, кв. м., + пристроенная жилая лоджия 19,4 кв. м. (полностью оформлена ,документы РФ ) На лоджии имеется сухой подвал, для хранения. Кухня 6,1 кв. м.Санузел раздельный.Дополнительно есть гардеробная.Высота потолков 2,4 м.
Вид из окна: во двор и на улицу.Горячая вода круглосуточно.В квартире остается мебель.Кондиционер!
Коммуникации все центральные:газ, свет, вода, канализация.Установлен кондиционер.Во дворе парковочные места.
Инфраструктура дома:В шаговой доступности: ️школы, детские сады, детские и спортивные площадки, магазины, рынок "Привоз" ,больницы, остановка общественного транспорта и т.д.
Полное юридическое сопровождение на высшем уровне федерального агентства до получения Вами ключей и документов, проверки и гарантии, отсутствие долгов и обременений, подтверждается документально, Вам останутся только приятные хлопоты переезда.
Право собственности РФ!Район пользуется спросом при сдаче квартиры в аренду.Показ в удобное для Вас время!































