Дом в Урожайном
Арт. 128531909 Дом с земельным участком в Симферопольском районе
!
Расположен по адресу: с. Урожайное, квартал имени Александра Сорокина.
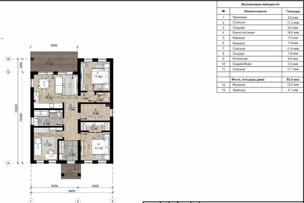
Общая площадь дома: 85.5 кв.м.Удобная планировка: кухня-гостиная 19.8 кв.м., три спальни (11, 4 кв.м., 11.1 кв. м., 11.2 кв.м.), раздельный санузел, есть котельная, гардеробная.Современный дизайн-проект.
Возможно обсудить сделать ремонт под клиента за отдельную плату.
Общая площадь участка 6 соток. Вид разрешённого использования участка: для индивидуального жилищного строительства.
Участок ровный, прямоугольной формы.
Коммуникации: свет подключен 15 кВт, вода - сделана скважина, газ- в проекте, подключение на 2026 год.
Строительные особенности: • Прочный фундамент • Армированный монолит в проемах • Стены из газоблока • Утеплённый фасад (экструдер 50 мм) • Глубокая скважина с питьевой водой
Район постепенно застраивается. Расстояние до школы, остановки - 1,5 км. В селе есть детский сад, амбулатория. Регулярное автобусное сообщение с Симферополем.
Координаты: 45.04969017, 34.11919536
Документы РФ. Звоните!















