Продается 3к.кв.,
Арт. 133220084 Добро пожаловать в квартиру для большой и дружной семьи в самом сердце Нагорного!
Это не просто квадратные метры — это честное, надежное жилье, где каждый уголок дышит уютом и теплом. Пространство, которое встречает вас свежестью косметического ремонта и редким для города сочетанием комфорта и отличной локации.
Квартира, которая дарит тепло
С первого шага вы почувствуете: здесь по-домашнему хорошо.Свежий косметический ремонт: квартира выглядит аккуратно и опрятно — можно заезжать сразу.
Раздельный санузел: ванная и туалет полностью облицованы плиткой — это гигиенично, красиво и избавляет вас от лишних трат на ремонт.
Особый бонус — мебель с историей качества: в подарок новым владельцам остается кухонный гарнитур и великолепный шкаф из бука (Югославия) со столом и стульями. Это та самая мебель, которая выглядит как новая спустя годы и добавляет интерьеру благородства.
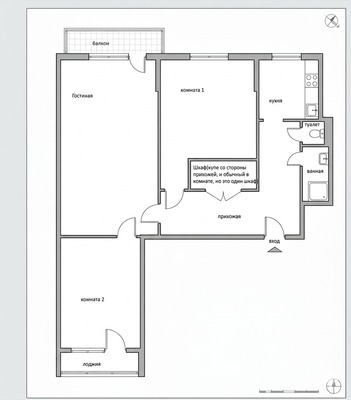
Планировка для жизни, а не просто для мебели
62,8 кв. метра полезного пространства, где у каждого будет свой личный уголок:
· Проходной зал: Это сердце квартиры, где стоит качественная югославская мебель. Открытое и просторное, оно объединяет семью для совместных вечеров. · Изолированная спальня: Ваше личное укрытие, полностью отделенное от общей зоны, где можно насладиться тишиной. · Третья комната (проходная): Удобно расположена за залом, она идеально подходит для детской или рабочего кабинета, создавая уютный личный уголок. · Двусторонность («Распашонка»): Квартира проветривается, в ней всегда есть и солнечная, и теневая стороны. · Два наружных пространства: Редкая удача — и балкон, и лоджия! Одно для хранения, другое — для утреннего кофе с видом на город. · Встроенный шкаф-купе: Умное решение для хранения вещей, освобождающее место в комнатах.
Преимущества, которые реально решают:
7 этаж из 9 — золотая середина. Отличный обзор, много естественного света и минимум уличной пыли.
Действительно тёплый дом — классическая застройка, проверенная временем.















































