Уютная квартира с видом на город!
Арт. 133152519 Предлагаем Вам к приобретению уютную квартиру на ул. Бела Куна в хорошем жилом состоянии, в обжитом районе. Квартира расположена на 9-м этаже. Выше есть полноценный технический этаж. Вид из окон на город.
Лифт новый.
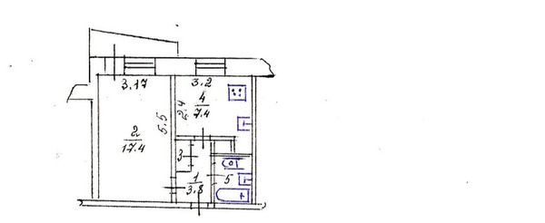
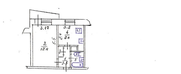
Общая площадь квартиры 35,3 м кв., комната 17,4 м кв. с выходом на балкон, кухня 8 м кв., прихожая 3,8 м кв., санузел совмещенный 4,1 м кв.
Квартира обставлена мебелью, есть вся необходимая бытовая техника. Состояние квартиры "зайти и жить".
Поблизости вся инфраструктура, школа № 23, лицей № 1, детский сад, магазины, кафе, аптеки, стоматологическая клиника.
Двор чистый, ухоженный, с приятным озеленением, зонами отдыха, детскими и спортивнымиплощадками.Квартира подходит как для проживания так и для сдачи в аренду. Район востребованный для аренды.
Кадастровый номер квартиры 90:22:010204:10442
Успевайте увидеть и приобрести!
Показ в удобное для Вас время.
Звоните, пишите, готова ответить на Ваши вопросы!



























































