Продается 2к.кв.,
Продается двухкомнатная квартира по ул. Тлостанова, 20 , район Горный.
Отличное подойдет для проживания или инвестиций.
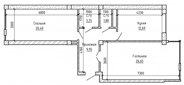
Квартира расположена на 9 этаже.Общая площадь 75 кв.м.Просторная гостина 27 кв.мУютная спальня 21 кв.м Раздельный санузелПроведены черновые работы (электроразводка, гипсовая штукатурка, стяжка, отопление: теплые полы, радиаторы, котел).Из окон открывается вид на горы, телевышку.
Клубный дом расположен по ул. Тлостанова в экологически чистом районе города.60 квартир в доме, подземный паркинг, детская и спортивная площадка во дворе.
Один собственник.
Оперативный показ.
Звоните!
Арт. 132734058
Интернет
Телефон
Спутниковое / Кабельное ТВ
Доступно людям с ограниченными возможностями
Консьерж
Охраняемая территория
Мусоропровод
Газ
Огороженная территория
Домофон
Счетчики воды
Пандус
Двор под шлагбаумом
Двор без машин







































































