Уют и комфорт в пригороде!
Арт. 133091410 Представьте себе тёплый, уютный дом, в котором каждая деталь продумана для вашего удобства и комфорта. Дом, в который приятно возвращаться, где царит свет и тепло, и который готов стать вашей крепостью, в которой хочется жить и развиваться!
Симферополь, Давидовка.
Двухэтажный дом площадью 145,6 кв. м. — идеальное сочетание удобства и уюта, воплощение современных строительных стандартов и добротного качества.Этот дом окружит вашу семью любовью и заботой.
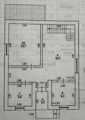
Планировка: пространство, наполненное светом и гармонией- Просторная кухня (21,3 кв. м.), которая станет центром семейных вечеров, где можно творить кулинарные шедевры для всей семьи и гостей.- Уютная родительская спальня (40,2 кв. м.) с выходом на солнечную терассу-зимний сад для глубокого сна и отдыха.- Детская комната (14,7 кв. м.) оборудованная мебелью для комфортного время препровождения вашего ребенка.- Небольшая кухонная зона (6,1 кв. м) находится рядом с гостинной для угощения гостей коктейлями и вкусным кофе.- Просторный санузел с окном находится на первом этаже.Котельная с хозяйственной комнатой находится на цокольном этаже.Есть небольшая банька для очищения души и тела и уютная барбекю зона для приготовления вкусных блюд.
Современные коммуникации: комфорт в каждом мгновении.- Электричество с 3 фазами — для вашего удобства- Центральные системы воды, канализации и газа- Все приборы учёта установлены для вашего удобства- Низкие коммунальные платежи — вы будете наслаждаться комфортом, не переживая о лишних расходах.
Вас ждёт сказка во дворе:- Теплый гараж с воротами-роллетами в котором предусмотрена большая емкость для воды с подогревом.- Теплый уличный туалет с летним душем.- Зона барбекю с камином — для встреч с друзьями и семейных вечеров- Ландшафтный дизайн с тротуарной плиткой, плодовыми деревьями, кустарниками и цветами, создающими атмосферу уюта и спокойствия.
Инфраструктура: удобство на расстоянии руки - Центр города всего в 7 минутах на машине-Удобный выезд на Московскую трас















































