Сдается коммерческое помещение,
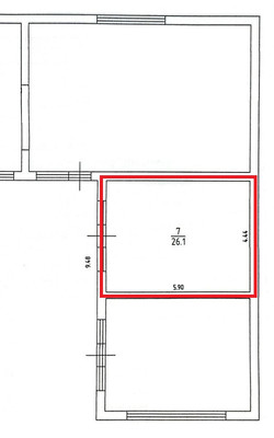
Арт. 132341930 На первой линии ул. Пехотной, сдаётся в Аренду помещение общей площадью 26 м2.Помещение находится в отдельно стоящем здании.Соседи РостерХит, алко-маркет Бутыль, ПВЗ Wildberris, ТРИ Товарища. Отлично подойдёт под торговую деятельность или услуги.Высокий автомобильный трафик и синергия существующих арендаторов обеспечит успех для Вашего бизнеса.
Коммуникации:выделенная мощность электроэнергии 15 кВт
вода/водоотведение центральные
отопление электрическое
Ремонт за счет владельца
Возможность менять провайдера
Первая линия
Ресторан
Фитнес
Банк
Банкомат
Супермаркет
Арендные каникулы
Интернет
Доступ 24 часа
Видео-наблюдение
Охраняемая территория
Контроль доступа
Есть оборудование
Отдельный вход

















