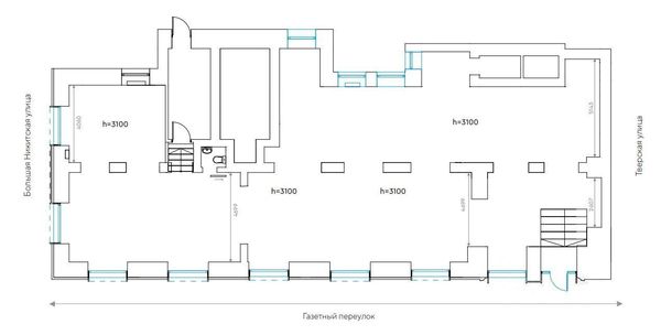
Помещение свободного назначения в Москва Газетный пер., 1/12 (249 м²)
Показ в удобное время. С АГЕНТАМИ РАБОТАЕМ И ПЛАТИМ. Здание находится в Пресненском районе ЦАО Москвы, в пешей доступности от станций метро. Удобная транспортная доступность обеспечивается благодаря близости улиц Большая Никитская и Охотный ряд. Налоговая: 03. Лифты: Есть. Вентиляция: Приточно-вытяжная. Кондиционирование: Сплит-системы. Безопасность: Система пожаротушений, Видеонаблюдение. Парковка: Наземная. Описание помещения: Отдельный вход с фасада. Витрины по всему периметру помещения. Отделка White Box. Есть свой санузел. Возможно размещение вывески. Планировка: открытая. Под чистовую отделку. Высота потолка: 3.1м. Тип налогообложения: УСН.
Ремонт за счет владельца
Возможность менять провайдера
Первая линия
Ресторан
Фитнес
Банк
Банкомат
Супермаркет
Арендные каникулы
Интернет
Доступ 24 часа
Видео-наблюдение
Охраняемая территория
Контроль доступа
Есть оборудование
Отдельный вход













