Горячая цена! Район Красной площа
Арт. 133614157 Продаётся двухкомнатная квартира в Краснодаре
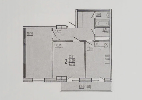
Адрес: улица Кореновская, дом 2, корпус 4.Этаж: 11 из 17.Площадь: 65,8 м².Состояние: без ремонта — отличная возможность создать интерьер по своему вкусу!
Расположение и инфраструктура
Квартира находится в развитом районе Краснодара с удобной транспортной развязкой и всей необходимой инфраструктурой в шаговой доступности.
Магазины:* супермаркет «Магнит» — на 1‑м этаже того же дома;* «Табрис‑Центр» — по адресу Кореновская, 2 к1;* «Ермолинские полуфабрикаты» — Кореновская, 12;* продуктовый магазин — Кореновская, 15/1.* ТРЦ Красная площадь в 20 минутах ходьбы или 5 минутах езды на автомобиле.
Образовательные учреждения:* средняя школа № 95 — Кореновская, 33;* средняя школа № 96 — Кореновская, 35;* детский сад «Планета» — Кореновская, 2 к1;* детский сад «Сёма» — Кореновская, 21.
Медицинские учреждения:* детская городская поликлиника № 6 — ул. Александра Покрышкина, 16;* ветеринарная клиника «Фармвет» — цокольный этаж того же дома.
Зелёные зоны:* парк «Солнечный остров» — в 15–20 минутах пешком или 5 минутах на машине. Это большая зелёная зона с прогулочными дорожками, зонами отдыха и детскими площадками — идеальное место для прогулок и активного отдыха;* небольшие скверы и благоустроенные дворы рядом с домом — подходят для коротких прогулок и отдыха во дворе.
Транспорт:* остановки общественного транспорта — в 3–5 минутах ходьбы от дома;* маршруты маршрутных такси: № 3, № 29, № 58, № 78 (следуют в центр города, к вокзалу и другим ключевым точкам Краснодара);* удобный выезд на основные магистрали города — легко добраться в любой район.
Дополнительные объекты рядом:* пункты выдачи Ozon и Lamoda — в доме по адресу Кореновская, 2 к4;* массажные салоны «Люкс Лайн» и «Тут разомнут» — в том же доме;* ногтевые студии и салоны красоты — в доме по адресу Кореновская, 2 к4;* отделение Почты России — в доме.
Преимущества покупки:* просторная двухкомнатная квартира (Евро3) с хорошей планировкой;* высокий этаж — ме



























