Сдается коммерческое помещение,
Арт. 133743605 Сдаётся в Аренду часть
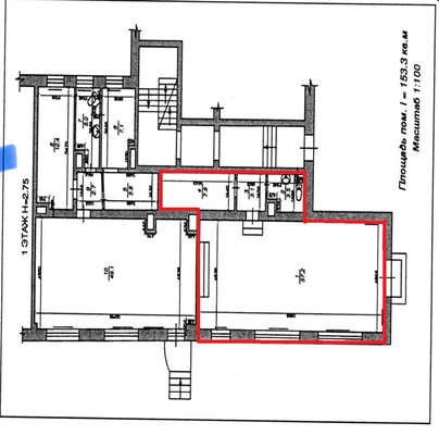
помещения свободного назначения общей площадью 71,4 м2.Помещение расположено на 1 этаже жилого дома.Помещение полностью автономное, правильная планировка. Помещение расположено на первой линии ул. К.Маркса в густонаселённом районе г. Калининграда.Отличная транспортная доступность и развитая инфраструктура, вблизи которой располагаются супермаркет SPAR, магазины, офисы, парковая зона. Данное помещение возможно использовать под разную коммерческую деятельность: офис, медицинский центр, учебный центр, и др.В помещении имеется санузел, котел газ, водоснабжение и водоотведение, отопление автономное (котёл газ). Электроэнергия: напряжение 220+380 В, мощность 25 кВт.,Установлены охранная и пожарная сигнализация. Много парковочных мест !!!





























