Продается дом,
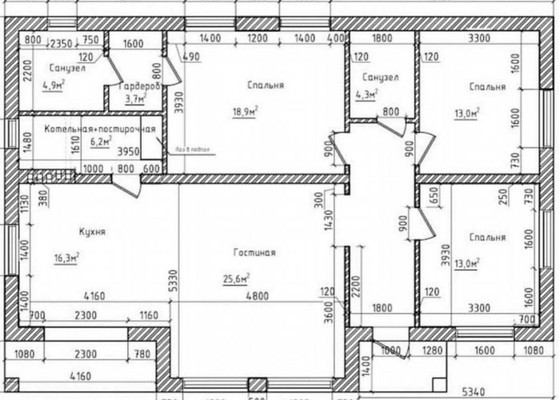
Продается готовый дом из газобетона с выполненной чистовой отделкой, что позволяет заселиться сразу после покупки. Объект реализуется юридическим лицом, что гарантирует прозрачность сделки. Фундамент — утепленная шведская плита (УШП), обеспечивающая энергоэффективность, равномерный обогрев полов и готовые инженерные коммуникации. Планировка функциональна и рассчитана на комфортное проживание семьи. В доме имеются -просторная кухня-гостиная, котельная и санузел, изолированная мастер-спальня с собственной ванной комнатой и две дополнительные спальни, что создает приватное пространство для всех. Особенностью является наличие второго света в гостиной, что визуально расширяет пространство и наполняет дом воздухом и светом.
Дом расположен в 65 км от МКАД по Симферопольскому шоссе в благоустроенном дачном некоммерческом товариществе с развитой инфраструктурой: детские площадки, футбольное поле, магазин первой необходимости. Территория обеспечена круглосуточной охраной с двумя контрольно-пропускными пунктами и системой видеонаблюдения. Ключевое преимущество — близость к природе: участок окружен лесом, а в пешей доступности находится река Лопасня с оборудованными пляжами, рыбными местами и возможностями для активного отдыха. Для покупателей доступна помощь в организации ипотечного финансирования, а также оперативный показ объекта в удобное время.
Арт. 132164819















































