Продается 4к.кв.,
Арт. 133667919 Продается просторная 4-комнатная квартира в тихом районе!
Расположена по адресу: г. Наро-Фоминск, ул. Курзенкова, д. 22.57 км от МКАД по Киевскому или Минскому шоссе.
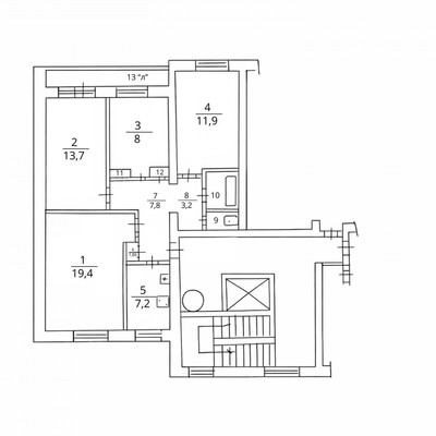
О плюсах жизни в этой квартире: — Общая площадь – 82,1 м²;—Расположена на 9-м этаже—Квартира светлая и очень теплая;—Раздельный санузел;—Функциональная кухня – 7,2 м²;—Застекленная лоджия — приятный бонус к жилому пространству (можно использовать для сушки вещей, хранения предметов быта или разбить зимний сад);—Удобная планировка: наличие 4 изолированных комнат даст возможность обеспечить необходимый уровень приватности, отдохнуть, заняться работой или любимым делом каждому из членов семьи.
Транспортная доступность:В непосредственной близости расположены детский сад и современная общеобразовательная школа.Без труда можно добраться до центра города, 3-5 минут пешком до станции Нара и автовокзала, откуда Вы сможете добраться на электричке до станции метро Киевская или на автобусе до станции метро Саларьево.
Квартира находится в свободной продаже. Документы готовы.Подходит под ипотеку!
Заинтересовало предложение?
Свяжитесь с нами по телефону или в сообщениях!



































