Дом в КП New Village с. Дубровичи
Продаётся дом в коттеджном посёлке «New Village» (с. Дубровичи)
ПОДХОДИТ ПОД ИПОТЕКУ: «Сельская ипотека» — 3% «Семейная ипотека» — 6%
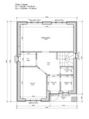
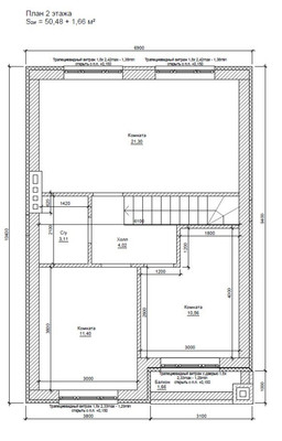
О доме:· 4 комнаты· Просторная гостиная — 31 кв.м· 2 холла, подсобное помещение, гардеробная, балкон· 2 просторных санузла
Особенности:· Панорамное остекление, двойной стеклопакет, профиль 70 мм· Мягкая кровля Shinglas· Перекрытия — ж/б плиты ПНО· Стены — газосиликатный блок + фасадная фактурная штукатурка· Фундамент — монолитный армированный ленточный
Посёлок и расположение:· Рязанская область, с. Дубровичи· 15 минут на машине до центра Рязани· Назначение земли — ИЖС· Комфортный подъезд к участкам· НЕТ ежемесячных взносов
Дополнительные услуги: Помощь в оформлении ипотеки без первоначального взноса, а также полное юридическое сопровождение.
Подробную информацию об указанном объекте недвижимости уточняйте по телефону или в офисе компании.Звоните! Пишите!
Арт. 133826670



















































